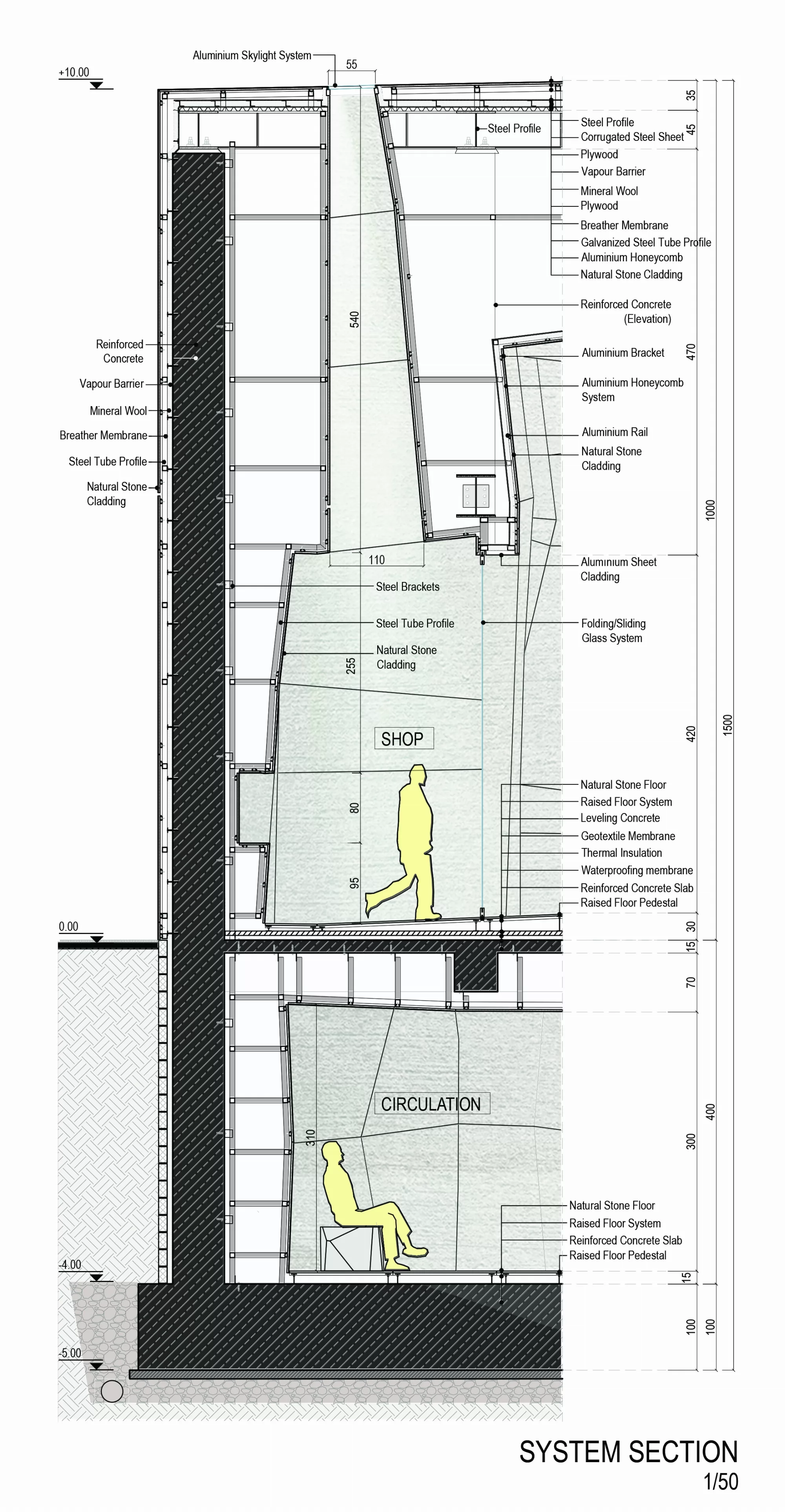
Stone is one of the most familiar and oldest parts of space design components. It has not only been used as a structural element, but also has always maintained its attractiveness as a finished building material with its diversified content and durability in accordance with its context. Both the continuity of its existence on the ground and the possibility of unearthing the structures that have been lost over time and not yet discovered under the ground as an ancient cultural treasure are directly proportional to the intrinsic properties of the material.

With the ancient theater discovered in the city center of Larissa, a brand new urban potential has recently been loaded. It is necessary to bring the cultural accumulation gained by hosting different civilizations for centuries to the agenda simultaneously with a functional urban policy that will meet the current needs of the citizens and visitors.

While the subject of the project has gained emphasis on the ancient theater becoming a new urban center of attraction, it also aims to establish meaningful connections with various focal points in its immediate vicinity such as the Pinios river, the city center and Fortress Hill. With this approach; Building blocks B876A and B876C, located between the Central Square and the Ancient Theatre, on the main walking route of the city, are of primary importance for the project. The project scenario of connecting the ancient theater and the city center directly with a new architectural approach has overcome the difficulties of expropriating and demolishing these islands. In order to strengthen the role of the theater as the most important symbol of the city of Larissa, the street that includes the building blocks was designed as one of the new circulation spines of the city. When looking at the historical development of the city, Urban Landscape Sculptor Nella Golanda draws attention, which contributes impressively to the character of public spaces.

Design of the Surrounding Area of the Ancient Theatre Larıssa

Tamirci Architects © 2025 / All Rights Reserved.
powered by 13/21.