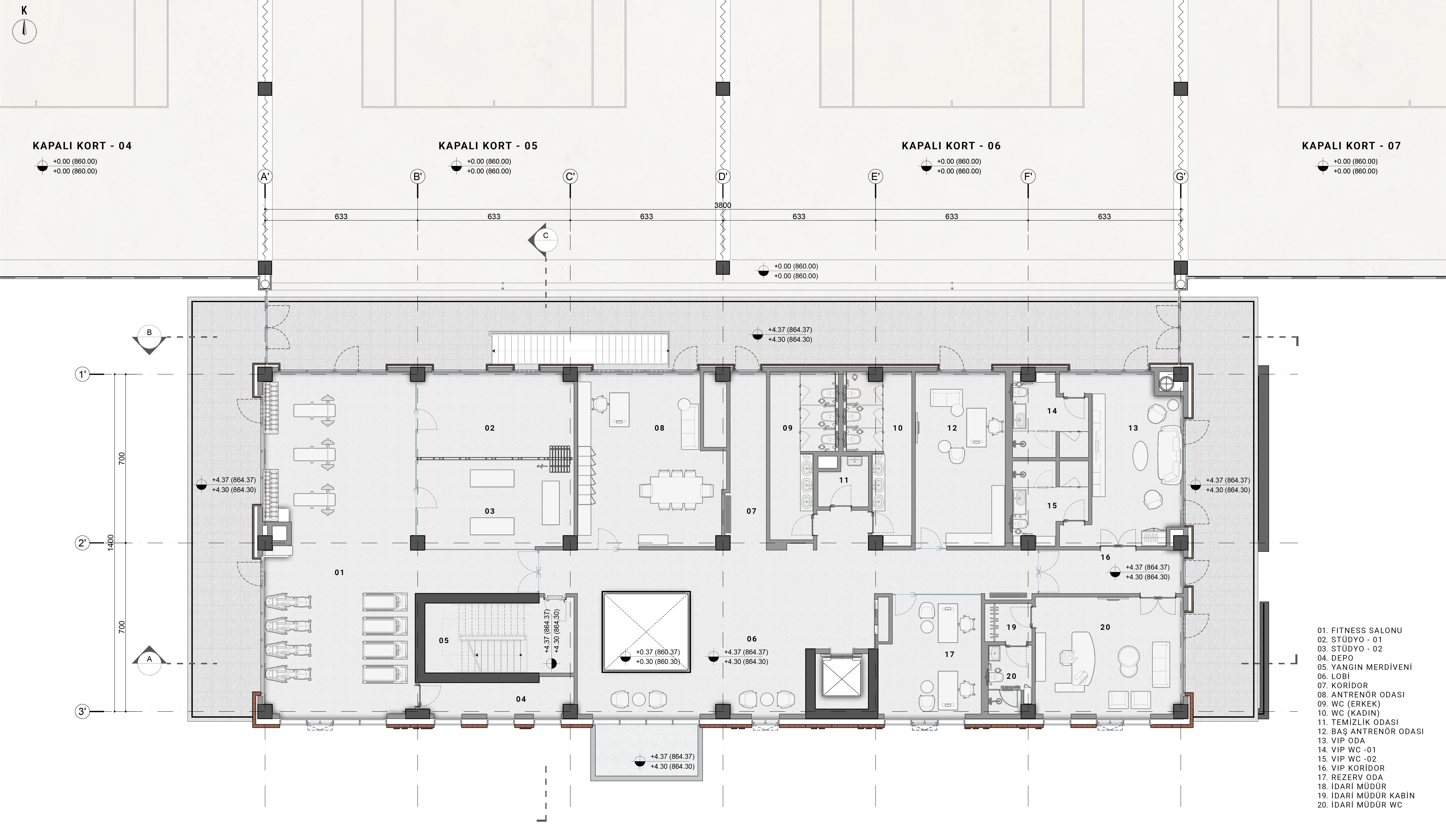
Macunköy Tennis Club is a meeting point in Ankara’s urban fabric where sports and architecture are conceived together. Comprising a total of 12 courts—9 indoor and 3 outdoor—the facility is designed to serve both professional and amateur players throughout the year.

The façades surrounding the indoor courts are defined by brick walls rhythmically divided by vertical windows. This compositional approach offers a balance of privacy and controlled daylight permeability, while also enhancing the expressive quality of the spaces. The spectator platform positioned between the building and the courts stands out as one of the project’s key spatial elements. Beyond serving as a place to watch matches, it also provides a social and resting area for club users. The perspectives offered from the platform extend not only toward the matches but also toward Ankara’s landscape. This intertwining of city views and sport adds architectural depth to the project.

More than just a sports facility, Macunköy Tennis Club is conceived as an architectural ensemble that strengthens the sense of togetherness through the connections it establishes—between spectator and player, city and nature.

Macunköy Tennis Club

Tamirci Architects © 2026 / All Rights Reserved.
powered by 13/21.