Maltepe Park Promotion Office Project can be defined as the re-functioning of the restaurant volume of approximately 500 m2 in Piazza Shopping Center and turning it into a promotion and activity area for new projects within the company. In this context, the preservation of some elements that will suit the new function in the space and the holistic consideration of new elements that will meet the requirements of the function stand out as design inputs.

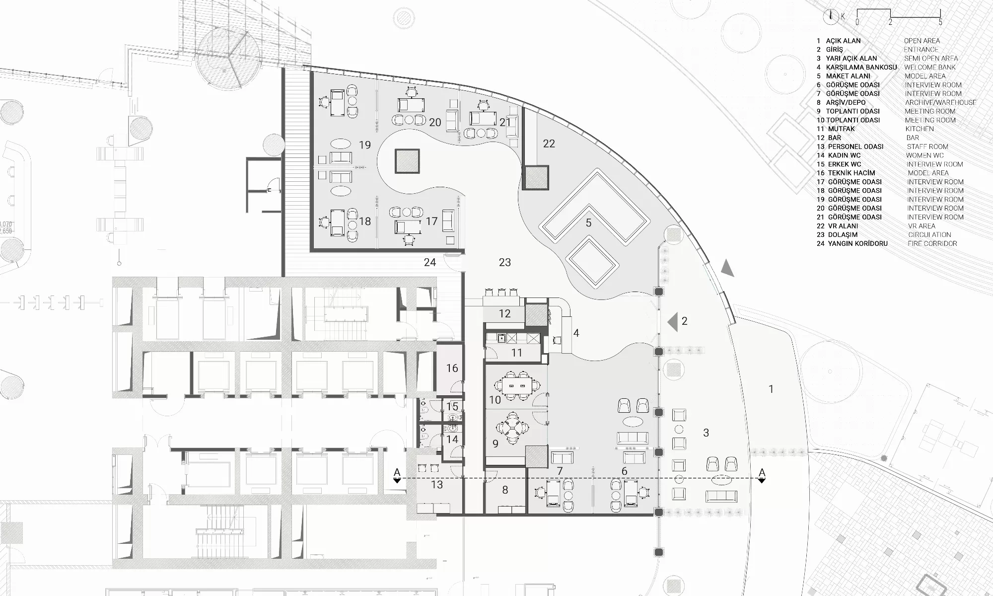
Model installations, which can be considered as the leading actors of the promotion office, are of critical importance for the layout decisions of the space. After being placed in a position that can be easily perceived from both indoor and outdoor spaces, an open-plan welcoming and working area array layout is aimed to accompany it. The natural awning function created by the existing sliding glass panels becomes the reference for locating the entrance door.

The open plan, consisting of a welcome counter, waiting areas, reserve areas for print and digital promotions, and open office units, is supported by a relatively free circulation route. The kitchen, personnel areas, technical and wet areas that will serve these, on the other hand, work from a more sheltered corridor, providing the desired level of privacy.

Some clues can be read from the preserved materials of the current volume in the color and material decisions. Light and simple tones are combined with soft floor materials added by considering acoustic values, aiming for a simple appeal. In addition, the walls and textures to which attention is wanted to be drawn are highlighted with tile and ocean colors.

Tamirci Architects © 2026 / All Rights Reserved.
powered by 13/21.